CASA VILA
2016
Projeto para Atelier de Habitação Unifamiliar
Equipe: Júlia de Queiroz
Localização: Rua Fernandes Guimarães, Botafogo, Rio de Janeiro, Brasil
Orientação: Antonio Sena, Fernando Esposito, Adriano Mendonça
representação visual parcialmente refeita em 2020
No bairro de Botafogo, em meio a edifícios mais recentes e bares e lojas da moda, há reminiscências da história desta parte do Rio de Janeiro. Uma das mais icônicas são as diversas vilas escondidas nos cantos do bairro. Vilas, em português do Brasil, são uma figurinha comum em cidades brasileiras como Rio e São Paulo: um grupo de casas de classe média circundando um única rua sem saída e, geralmente, com um portão de entrada.
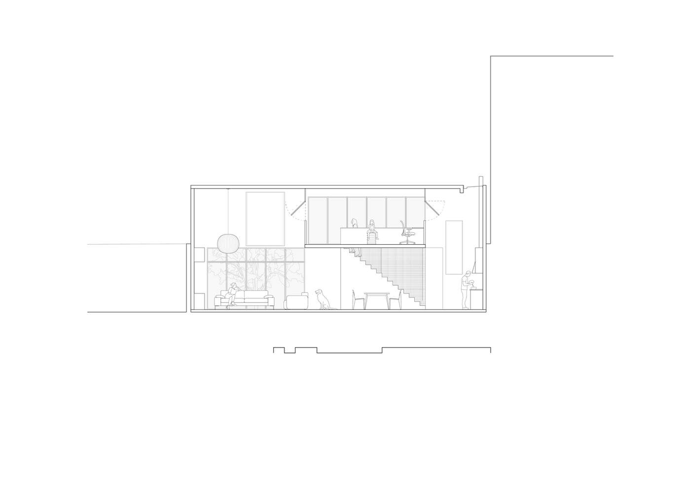
Em um bairro com consecutivos lançamentos imobiliários como Botafogo, a decisão por viver em uma casa, especialmente na Rua Fernandes Guimarães (com quase nenhum tráfego, terminando em um pracinha e a 10 minutos à pé do metrô), indica um desejo por estar no centro da cidade, junto a todos os serviços, e, ao mesmo tempo, ter maior tranquilidade, com maior contato com o exterior, conectando-se com natureza diariamente. esse desejo é sobre ser capaz de deitar sobre a grama e tomar café da manhã ou o cafezinho depois do almoço ou um cerveja no fim de semana sentado em uma cadeira do lado de fora, algo não facilmente feito em um apartamento. Mas, em uma vila, isso é como os dias passam sempre.
Para esse projeto, levando em consideração o cliente previsto pelo atelier (um jovem casal ocm intenções de crescer a família no futuro próximo) e o desejo mencionado acima, criar a atmosfera de comunhão e relação entre o exterior e o interior da casa no dia-a-dia, característica de uma vila, foi o objetivo final da proposta.
julia.queica@gmail.com | +55 21 981686138









